Aanbieding Mobilheim

Onze mobiele huizen zijn flexibel en voldoen aan verschillende verwachtingen - ideaal voor wonen of voor zakelijke activiteiten.

Dom mobilny
Dom mobilny

Wij bouwen jouw droom.

AANBOD VOOR MOBIELE HUIZEN

Controleer onze huizen

Youtube VIP MOBIL HOUSE
Pinterest VIP MOBIL HOUSE
INSTAGRAM VIP MOBIL HOUSE
Linkedin VIP MOBIL HOUSE
FACEBOOK VIP MOBIL HOUSE
EMAIL VIP MOBIL HOUSE PL
Kontakt

Trend Huizen 2025

Menu językowe
NL
Menu językowe 27x27
Menu Językowe Strona 3
PL
Logo firmy VIP Mobil House

Ontdek mogelijkheden

Mobilheim het hele jaar door

Hieronder vindt u de gedetailleerde uitrusting van de huizen:

Grandes home mobile
Star VIP MH producent
Domy szyte na miarę potrzeb
Mobil house transport
5 STAR VIP MOBIL HOUSE

Basis | Standaard | Premium | Individueel

In ons aanbod van mobilhomes presenteren we vier uitvoeringsvarianten van de huizen.

Basis - Een huis in ontwikkeling, uitgerust met de noodzakelijke installaties, klaar voor de montage van wand- en vloerpanelen. Wanden, plafond en vloer van duurzame OSB-platen bieden een uitstekende basis voor verdere ruimte-inrichting.

 

Standaard - Een volledig afgewerkt huis, waarin elegante wand- en plafondpanelen, stijlvolle vloeren en moderne verlichting zijn gebruikt. Bovendien is het object uitgerust met airconditioning en een complete badkamer, waardoor het na het plaatsen van meubels klaar is om in te trekken.

 

Premium - Een volledig instapklaar huis, dat een moderne keuken en gemeubileerde kamers en een woonkamer biedt. De hoge uitvoeringskwaliteit en de aandacht voor detail waarborgen comfort op het hoogste niveau, en de gehele inrichting is beschikbaar in de "sleutel-op-de-deur"-standaard.

 

Daarnaast bieden wij u de mogelijkheid om individuele projecten te realiseren, waardoor u een ruimte kunt creëren die aan uw wensen en voorkeuren voldoet.

Please provide the text you would like me to translate into Dutch.

Veelgestelde vraag van klanten

Dom mobilny
Dom mobilny

Dit is een textelement. Dubbelklik op dit element om de tekst te bewerken. U kunt ook de grootte en positie van dit element en alle parameters, inclusief achtergrond, rand en nog veel meer, naar wens aanpassen. U kunt ook een animatie toekennen aan textelementen, zodat ze met het gekozen effect verschijnen wanneer ze op het scherm worden weergegeven.

Vaak gestelde vragen door klanten

Dom mobilny
Dom mobilny

Dit is een tekstelement. Dubbelklik op dit element om de tekst te bewerken. U kunt ook de grootte en positie van dit element naar wens aanpassen, evenals alle parameters, inclusief achtergrond, rand en nog veel meer. U kunt tekst elementen ook een animatie toewijzen, zodat ze met een gekozen effect worden weergegeven wanneer de gebruiker de pagina op het scherm ziet.

Aanvullende opties

Dom mobilny

EXTRA BETALD

 

TOEVOEGING

• Verzinkte constructie van het huisframe • Draaisysteem voor de mobiele versie. Zeer eenvoudige bediening van het huis. • Wijziging van de hellingshoek van het dak • Wijziging van de hoogte van de ruimte binnenin • Wijziging van de totale afmetingen van het huis • Terrasoversteek; van 10 tot 60 cm lengte • Terras; vanaf 61 cm lengte – naar keuze van de klant

 

ISOLATIE • Vervanging door minerale wol met grotere dikte en betere parameters • Vervanging door PUR-schuim

 

RAMEN • Vervanging van de ramen door driedubbel beglaasde ramen • Folie aan beide zijden van de ramen • Wijziging of toevoeging van ramen, bijv. driehoekige aan de voorkant van het huis • Vervanging van de ramen door VEKA-systeem • Rolhorren; muggenramen; gordijnen

 

INGANGSDEUREN • Beglaasde deuren met 2- of 3-voudige beglazing

 

GEVEL – MOBIELHUIS • Vervanging van de standaard gevelpanelen door EXTRA BETALD-materialen: Falzpaneel; Ruitpaneel; Fronto MAX 3; Solvo; VinyPlus Quattro; VinyPlus Round Profil; VinyPlus Shadow; Viny Board Design; Viny Board; VinyPlus Classic; Kerrafront Classic; Kerrafront Modern Wood; Kerrafront Wood Effect; Terras, Terras hout

 

DAK EN PLAFOND • Vervanging van de standaard dakpanelen door EXTRA BETALD-materialen: Zet Roof; Izi Roof; Izi Look; Falzpaneel; Ruitpaneel; Photovoltaikpaneel SunRoof of SolRoof • Vierkant dakgootsysteem of verborgen gootsysteem • Vervanging van de standaard plafondpanelen door EXTRA BETALD-materialen: Vilo Motivo PVC; Strama Panel; Forestia One-Step Wall; Forestia EliteX; Forestia Walls2Paint; Huntonit; Vito; Mobilhuis

 

VLOER • Vervanging van de standaard wandpanelen door EXTRA BETALD-materialen: Vilo Motivo PVC; Strama Panel; Forestia One-Step Wall; Forestia EliteX; Forestia Walls2Paint; Huntonit; Vito • Vervanging van de standaard badkamerpanelen door FIBO-panelen

 

BINNENWANDEN • Vervanging van de standaard vloerpanelen door EXTRA BETALD-materialen: Rigio-paneel of Quick-Step-paneel

 

BUITENVERLICHTING • Premium LED-buitenwandlampen met richtstraal • Externe lineaire LED-verlichting rondom de glazen voorzijde

 

BINNENVERLICHTING • Lineaire LED-verlichting in het plafond

 

VERWARMING EN KOELING • Elektrische vloerverwarming, Infrarood verwarmingsfolie met 80 W/m². Bediening via Wi-Fi – mobiele app; thermostaat in elke kamer • Vervanging van de standaard radiator door EXTRA BETALD-model • Vervanging van de badkamer radiator door EXTRA BETALD-model • Vervanging van de airconditioning met verwarmfunctie door een krachtiger model

 

UITGERUSTE BADKAMER – MOBIELHUIS • Douchecabine 90 × 90 cm of groter met premium kranen • Wand-WC in wit of zwart • Premium LED-spiegel • Opbouwwasbak Premium • 80L elektrische boiler

 

UITGERUSTE KEUKEN • VIP-keukenkasten; schuine kasten tot aan het plafond • Meubelcoating in hoogglans • Hoge inbouwkoelkast – Whirlpool • 45 cm inbouwvaatwasser – Whirlpool • Extra spoelbak

 

UITGERUSTE WOONKAMER • Extra bank • Tafel met stoelen • TV-kast

 

UITGERUSTE SLAAPKAMER I • Vervanging van de standaard nachttafel door EXTRA BETALD-model • Hangkast boven het bed • Vrijstaande kledingkast

 

UITGERUSTE SLAAPKAMER II • Vervanging van de standaard nachttafels door EXTRA BETALD-modellen • Vrijstaande kledingkast met schuifdeuren • Hangkast boven het bed

 

BESCHERMING • Extra bescherming van het huis met krimpfolie tijdens transport

 

BOVENLIGGENDE ELEMENTEN – MOBIELHUIS • Photovoltaïsche installatie • Voorbereiding voor fotovoltaïsche installatie • Energieopslag • Warmtepomp • Video surveillancesystemen of voorbereiding daarvoor • Bouwproject • Fotorealistische visualisaties van het huis vóór de productie (perfecte aanpassing van het huis tijdens de planning) • Transport, plaatsing en uitlijning van het huis op het perceel van de klant • Certificaat TÜV Rheinland (Europese norm EN 1647)

Premium

Dom mobilny
Dom mobilny

STANDAARD BASISUITRUSTING en aanvullend:

 

UITGERUSTE KEUKEN• Standaard keukenkasten met BLUM-scharnieren, decorfolie en werkblad naar keuze, inbouwapparatuur• Inbouwkoelkast 122 cm/H – Whirlpool• Oven – Whirlpool• Inductiekookplaat – Whirlpool• Telescoop-afzuigkap – Whirlpool• Standaard spoelbak, keuze uit graniet of roestvrij staal, met kraan

 

UITGERUST WOONKAMER• Bank of hoekbank met slaapfunctie, vrij te kiezen uit de catalogus• TV-wandbeugel• Salontafel naar keuze uit de catalogus

 

UITGERUST SLAPENDE KAMER I• Eenpersoonsbed uit de catalogus 70 × 200 cm / 2 stuks• Standaard nachtkastje / 1 stuk

 

UITGERUST SLAPENDE KAMER II• Tweepersoonsbed uit de catalogus 160 × 200 cm / 1 stuk• Standaard nachtkastje / 2 stuks

Standaard

Dom mobilny
Dom mobilny

BASISUITRUSTING evenals aanvullend:

 

DAK EN PLAFOND• Plafondbekleding: Standaard PVC-paneel in elke kleur uit de catalogus (paneelbreedte 100 of 165 mm) of PVC-paneel Vilo wit (paneelbreedte 250 mm)

 

VLOER• Vloerbekleding: Vinylvloerpaneel VILO uit de catalogus• Plinten en plafondafwerkingen in het wit

 

BINNENWANDEN• Wandbekleding: Standaard PVC-paneel in elke kleur uit de catalogus (paneelbreedte 100 of 165 mm) of PVC-paneel Vilo wit (paneelbreedte 250 mm)• Badkamerwandbekleding: VILO SPC-paneel, kleur naar keuze uit de catalogus

 

BINNENVERLICHTING• Binnen-LED-spots, verstelbaar, in elke ruimte – afhankelijk van de grootte van het huis 12 of 16 stuks

 

BINNENDOORS• Deuren inclusief kozijnen, vrij te kiezen uit de catalogus

 

VERWARMING EN KLIMAATREGELING• Standaard elektrische verwarmingen: 1 stuk per kamer (totaal 3–5 stuks in het hele huis)• Standaard handdoekradiator in de badkamer: 1 stuk• Airconditioning met verwarmingsfunctie 3,2 kW, bediening via afstandsbediening en mobiele app

 

UITGERUSTE BADKAMER• Douchecabine 90 × 90 cm met kranen, kleur naar keuze uit de catalogus• Staande WC-combinatie• Standaard LED-spiegel uit de catalogus• Wastafelmeubel, fronten en werkblad naar keuze• Opbouwwastafel met kraan• Mechanische ventilatie• Elektrische boiler 50 L

Basis

Dom mobilny
Dom mobilny

HUISCONSTRUCTIE

• Staalraamconstructie met geïmpregneerde houten elementen, corrosiebestendig, uitgevoerd op basis van een statisch project. Mobiele versie (met wielen, van 4 tot 8 wielen, optioneel met stuuras) of Flat Floor (platte vloer). Onderzijde van het huis beveiligd met plaat. Standaard interne hoogte: 250 cm.

 

JAARRONDEVISOOLATIE

• Minerale wol 15 cm λD=0,035 W/mK in de vloer, het dak en de wanden • Vochtbescherming; dampremmende laag en winddichting

 

RAAMEN

• PVC – Dubbel glas (2-voudig), inbouwdiepte 80 mm; aan de buitenkant foliedekking

 

INGANGSDEUREN

• Geïsoleerde stalen deuren uit catalogus, 90 cm

 

GEVEL

• Standaard uit catalogus: Fronto V-BLACK of Fronto MONOCOLORS of Siding Vilo

 

DAK EN PLAFOND

• Standaard dakbedekking: Paneel FINN of ALFA of STIGMA • Gevelsysteem met PVC-dakgoot standaard of zonder • Naast stalen elementen: Houten constructie, OSB-plaat 10 mm, Minerale wol 15 cm, membraan (winddichting) en dampremmende folie • Driehoekig plafond in elke ruimte voor meer ruimtelijkheid; plafonds bekleed met OSB-plaat

 

VLOER

• Houten constructie, OSB-plaat 22 mm, Minerale wol 15 cm, membraan (winddichting) en dampremmende folie • Vloerafwerking met OSB-plaat

 

BINNENWANDEN

• Houten constructie, OSB-plaat 10 mm, buitenwanden met Minerale wol 15 cm, membraan (winddichting) en dampremmende folie • Bekleding van de binnenwanden met OSB-plaat • Bekleding van de badkamerwanden met OSB-plaat

 

BUITENVERLICHTING

• Buiten LED-wandlampen met richtstraal. Standaard: 3 stuks per zijde (totaal 6 stuks)

 

ELECTROINSTALLATIE

• 3-fase, aangelegde leidingen; installatiekast, aardlekschakelaar • Externe elektrische aansluitkast voor stroomvoorziening, RTV-installatie • Voorbereide kabeluitlaten voor 230V-wandcontactdozen en schakelaars in elke ruimte • Uitlaten voor LED-plafondlampen (12–16 stuks). Aansluitingen voor apparaten

 

SANITAIRINSTALLATIE

• Complete water- en afvoerinstallatie met kant-en-klare aansluitingen onder het huis. Drukgeprüfte waterinstallatie • Aansluitingen voor apparaten voorbereid

 

Wersja STANDARD
WERSJA STANDARD
Podstawa wyposażenia Basic oraz dodatkowo:
DACH I SUFIT

Wykończenie sufitu Panel PCV Standard o dowolnym kolorze z katalogu (szerokość panela 100 lub 165mm) lub Panel PCV Vilo biały (szerokość panela 250mm)

PODŁOGA

Wykończenie podłogi Panel podłogowy winylowy VILO z katalogu

Listwy przypodłogowe i przysufitowe w kolorze białym

ŚCIANY WEWNĘTRZNE

Wykończenie ścian Panel PCV Standard o dowolnym kolorze z katalogu (szerokość panela 100 lub 165mm) lub Panel PCV Vilo biały (szerokość panela 250mm)

Wykończenie ścian łazienki Panel VILO SPC, kolor do wyboru z katalogu

OŚWIETLENIE WEWNĘTRZNE

Wewnętrzne regulowane punkty LED w każdym pomieszczeniu, w zależności od wielkości domu 12 lub 16szt

DRZWI WEWNĘTRZNE

Drzwi w komplecie z ościeżnicami, dowolne z katalogu

OGRZEWANIE I KLIMATYZACJA

Grzejnik elektryczny standard; 1szt / pomieszczenie (łącznie 3-5 na cały dom)

Grzejnik drabinkowy standard do łazienki; 1szt

Klimatyzacja z funkcją grzania 3,2kW, sterowanie pilotem i aplikacją mobilną

WYPOSAŻONA ŁAZIENKA

Kabina prysznicowa 90 x 90cm z armaturą, w kolorze z katalogu

WC kompakt stojący

Lustro LED standard z katalogu

Szafka pod umywalkę, fronty oraz blat do wyboru

Umywalka nablatowa z baterią

Wentylacja mechaniczna

Bojler elektryczny 50L

Wersja PREMIUM
WERSJA PREMIUM
Podstawa wyposażenia Standard oraz dodatkowo:
WYPOSAŻONA KUCHNIA

Zabudowa kuchenna standard na osprzęcie BLUM, okleina oraz blat do wyboru, AGD w zabudowie

Lodówka w zabudowie 122 cm/H; - Whirlpool

Piekarnik - Whirlpool

Płyta indukcyjna - Whirlpool

Okap teleskopowy - Whirlpool

Zlewozmywak Standard Granitowy lub Stalowy do wyboru, z baterią

WYPOSAŻONY SALON

Sofa lub Narożnik z funkcją spania, dowolny rodzaj z katalogu

Uchwyt ścienny na telewizor

Stolik kawowy do wyboru z katalogu

WYPOSAŻONA SYPIALNIA I

Łóżko pojedyncze z katalogu 70x200 / 2 szt

Stolik nocny standard / 1szt

WYPOSAŻONA SYPIALNIA II

Łóżko duże z katalogu 160x200 / 1szt

Stolik nocny standard / 2szt

Aanvullende uitrusting wordt individueel gewaardeerd op basis van de specifieke afmetingen van het huis. Basisaanbieding van mobiele huizen + extra toevoegingen.

Wersja PREMIUM
WYPOSAŻENIE DODATKOWE
EXTRA PAID
WYPOSAŻENIE DODATKOWE

Cynkowanie ogniowe podwozia domu

Obrotnica domu dla wersji Mobilnej. Sterowanie domem w bardzo prosty sposób.

Zmiana kąta nachylenia dachu

Zmiana wysokości pomieszczenia wewnątrz

Zmiana wymiarów całkowitych domu

Wypust tarasowy; od 10 do 60cm długości

Taras; od 61cm długości do - do wyboru przez klienta

IZOLACJA

Zamiana na wełnę o większej grubości i lepszych parametrach.

Zamiana na Pianę PUR.

OKNA

Zamiana okien na 3 szybowe

Okleina okienna obustronna

Zmiana lub dodanie okien np na trójkątne na czele domu.

Zmiana okien na system VEKA

Rolety okienne; Moskitiery; Zasłony

DRZWI ZEWNĘTRZNE

Przeszklone w pakiecie 2 lub 3 szybowym

ELEWACJA

Zamiana paneli elewacyjnych standard na materiały EXTRA PAID. Panel na rąbek; Panel Karo; Fronto MAX 3; Solvo; VinyPlus Quattro; VinyPlus Round Profil; VinyPlus Shadow; Viny Board Design; Viny Board; VinyPlus Classic; Kerrafront Classic; Kerrafront Modern Wood; Kerrafront Wood Effect; Deska, Drewno tarasowe

DACH I SUFIT

Zamiana paneli dachowych standard na materiały EXTRA PAID. Zet Roof; Izi Roof; Izi Look; Panel na rąbek; Panel Karo, Panel fotowoltaiczny SunRoof lub SolRoof

Orynnowanie kwadratowe lub system rynny ukrytej

Zamiana paneli sufitowych standard na materiały EXTRA PAID. Vilo Motivo PVC; Strama Panel; Forestia One-Step Wall; Forestia EliteX; Forestia Walls2Paint; Huntonit; Vito

PODŁOGA

Zamiana paneli ściennych standard na materiały EXTRA PAID. Vilo Motivo PVC; Strama Panel; Forestia One-Step Wall; Forestia EliteX; Forestia Walls2Paint; Huntonit; Vito

Zamiana paneli ściennych Łazienki standard na panele FIBO.

ŚCIANY WEWNĘTRZNE

Zamiana paneli podłogowych standard na materiały EXTRA PAID. Panel Rigio lub Panel Quick-Step

OŚWIETLENIE ZEWNĘTRZNE

Zewnętrzne kinkiety kierunkowe LED Premium

Zewnętrzne liniowe oświetlenie LED dookoła witryny przeszklonej

OŚWIETLENIE WEWNĘTRZNE

Liniowe oświetlenie LED w suficie

OGRZEWANIE I KLIMATYZACJA

Ogrzewanie podłogowe elektryczne, folia grzewcza na podczerwień o mocy 80w/m2. Sterowanie za pomocą Wi-Fi - aplikacja mobilna; w każdym pomieszczeniu termostat

Zamiana grzejnika standardowego na model EXTRA PAID

Zamiana grzejnika łazienkowego na model EXTRA PAID

Zamiana klimatyzacji z funkcją grzania na mocniejszy model

WYPOSAŻONA ŁAZIENKA

Kabina prysznicowa 90 x 90cm lub większa z armaturą Premium

WC podwieszany biały lub czarny

Lustro LED Premium

Umywalka nablatowa Premium

Bojler elektryczny 80L

WYPOSAŻONA KUCHNIA

Zabudowa kuchenna VIP; szafki skośne do sufitu

Okleina meblowa w połysku

Lodówka wysoka w zabudowie; - Whirlpool

Zmywarka w zabudowie 45cm; - Whirlpool

Zlewozmywak extra

WYPOSAŻONY SALON

Sofa extra

Stół z krzesłami

Szafka pod telewizor

WYPOSAŻONA SYPIALNIA I

Zamiana stolika nocnego standard na model EXTRA PAID

Szafka wisząca nad łóżkiem

Szafa stojąca

WYPOSAŻONA SYPIALNIA II

Zamiana stolików nocnych standard na modele EXTRA PAID

Szafa stojąca z drzwiami przesuwnymi

Szafka wisząca nad łóżkiem

OCHRONA

Dodatkowe zabezpieczenie domku folią termokurczliwą na czas Transportu

DODATKOWE ELEMENTY

Instalacja fotowoltaiczna

Przygotowanie pod instalację fotowoltaiczną

Magazyn energii

Pompa ciepła

Monitoring lub przygotowanie pod monitoring

Projekt budowlany

Fotorealistyczne wizualizacje domu przed produkcją (dopasowanie idealnego domu w czasie projektowania)

Transport, ustawianie i poziomowanie domu na działce klienta

Dokument potwierdzający Certyfikat TÜV Rheinland (norma europejska EN 1647)

HUIZEN

Voorbeeldhuizen:

Cena domu letniskowego 2k25

Onze huizen:

HUISMODELLEN

Letniskowy domek
  • Huistransport – veilige transport van het gebouw naar de bestemmingslocatie met modern equipment.

  • Lossen – professionele lossing van het huis door ons ervaren team, dat veiligheid en efficiëntie waarborgt.

  • Inheffen op de bouwplaats – nauwkeurige positionering van het gebouw met tractors, graafmachines of kranen. Uitrichten en nivelleren – nauwkeurige

  • Uitrichting van het gebouw met moderne meetinstrumenten om stabiliteit en comfort voor de bewoners te waarborgen.

 

Ons specialistenteam garandeert een professionele aanpak en uitgebreide ondersteuning in elke fase en zorgt zo voor een stressvrij en efficiënt proces.

Wij nemen graag de complete afhandeling van begin tot eind voor u over - uitgebreid.

Uitgebreide service

MOBIL HUIJS
Oferta domów mobilnych VIP Mobil House dostosowana do Państwa potrzeb.

PRIJS LISTE VAN HUIZEN

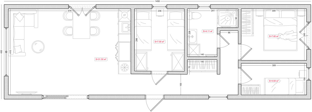
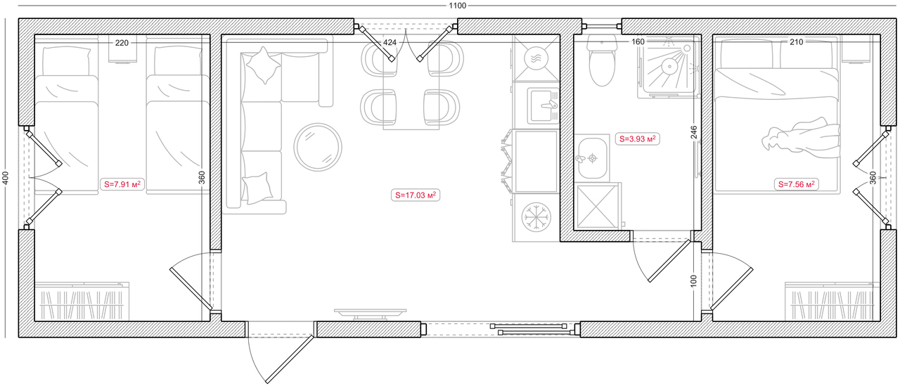
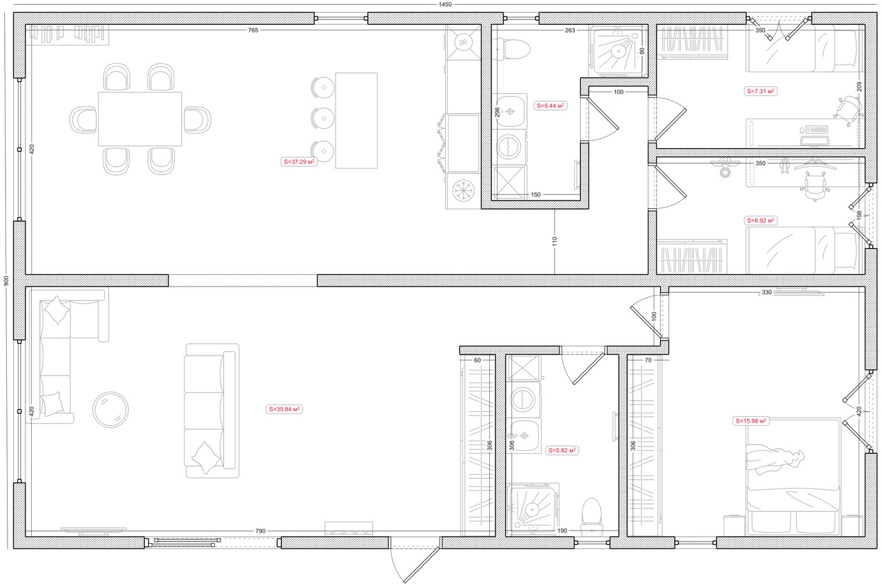
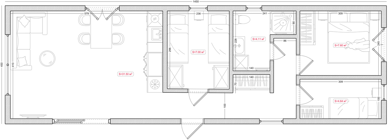
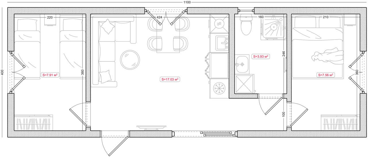
Voorbeelden van huisontwerpen:

Huisproject
Huisproject
Huis project
Huisproject
Huisproject
huis project
Huisproject
Huisproject
Huisproject
Huisproject
Huisproject
Huisproject
Huisontwerp

Voornaam

Telefoon

E-mail

Kiezen

Bericht

Verzenden
Verzenden
Verstuurd. Je zult snel een antwoord ontvangen!

FOUT.

Wij adviseren u graag en helpen u bij de selectie.

CONTACT

Letniskowy domek

Neem contact op met VIP MH

jarek@vipmobilhouse.com

INSTAGRAM VIP MOBIL HOUSE
Youtube VIP MOBIL HOUSE
Pinterest VIP MOBIL HOUSE
Linkedin VIP MOBIL HOUSE
FACEBOOK VIP MOBIL HOUSE

Volg ons

Kontakt

15-099 Białystok

Legionowa 10/208

EMAIL VIP MOBIL HOUSE PL

Auteursrecht © 2025 | VIP Mobil House