Oferta Dom mobilny

Nasze domy mobilne są elastyczne i spełniają różne oczekiwania — idealne do zamieszkania lub prowadzenia działalności.

Dom mobilny
Dom mobilny

Budujemy Twoje marzenie

OFERTA DOMÓW MOBILNYCH

Sprawdź Nasze Domy

Youtube VIP MOBIL HOUSE
TikTok
Pinterest VIP MOBIL HOUSE
INSTAGRAM VIP MOBIL HOUSE
Linkedin VIP MOBIL HOUSE
FACEBOOK VIP MOBIL HOUSE
EMAIL VIP MOBIL HOUSE PL
Kontakt

Trend Homes 2025

Menu językowe
PL
Menu językowe 27x27
Menu Językowe Strona 3
PL
Logo firmy VIP Mobil House

Odkryj możliwości

Dom Mobilny całoroczny

Poniżej znajdą Państwo szczegółowe wyposażenie domów:

Grandes home mobile
Star VIP MH producent
Domy szyte na miarę potrzeb
Mobil house transport
5 STAR VIP MOBIL HOUSE

Basic  |  Standard  |  Premium  |  Indywidual

W naszej ofercie domów mobilnych prezentujemy cztery warianty wykończenia domów. 

Basic - Dom w stanie deweloperskim, wyposażony w niezbędne instalacje, gotowy do montażu paneli podłogowych i ściennych. Ściany, sufit oraz podłoga wykonane z trwałej płyty OSB stanowią doskonałą podstawę do dalszej aranżacji przestrzeni.

 

Standard -  W pełni wykończony dom, w którym zastosowano eleganckie panele ścienne i sufitowe, stylową podłogę oraz nowoczesne oświetlenie. Dodatkowo, obiekt wyposażony jest w klimatyzację oraz kompletną łazienkę, co sprawia, że jest gotowy do zamieszkania po wstawieniu mebli.

 

Premium -  Dom w pełni gotowy do zamieszkania, oferujący nowoczesną kuchnię oraz umeblowane pokoje i salon. Wysoka jakość wykończenia oraz dbałość o detale zapewniają komfort na najwyższym poziomie, a całość jest dostępna w standardzie „pod klucz”.

 

Dodatkowo, proponujemy możliwość realizacji indywidualnych projektów, co pozwala na stworzenie przestrzeni zgodnej z Państwa wizją i preferencjami.

Pytanie często zadawne przez klientów

Dom mobilny
Dom mobilny

To jest element tekstowy. Kliknij ten element dwukrotnie, aby edytować tekst. Możesz też dowolnie zmieniać rozmiar i położenie tego elementu oraz wszelkie parametry wliczając w to tło, obramowanie i wiele innych. Elementom tekstowych możesz też ustawić animację, dzięki czemu, gdy użytkownik strony wyświetli je na ekranie, pokażą się one z wybranym efektem.

Pytanie często zadawne przez klientów

Dom mobilny
Dom mobilny

To jest element tekstowy. Kliknij ten element dwukrotnie, aby edytować tekst. Możesz też dowolnie zmieniać rozmiar i położenie tego elementu oraz wszelkie parametry wliczając w to tło, obramowanie i wiele innych. Elementom tekstowych możesz też ustawić animację, dzięki czemu, gdy użytkownik strony wyświetli je na ekranie, pokażą się one z wybranym efektem.

Opcje Dodatkowe

Dom mobilny
EXTRA PAID
 

WYPOSAŻENIE DODATKOWE

• Cynkowanie ogniowe podwozia domu

• Obrotnica domu dla wersji Mobilnej. Sterowanie domem w bardzo prosty sposób.

• Zmiana kąta nachylenia dachu

• Zmiana wysokości pomieszczenia wewnątrz

• Zmiana wymiarów całkowitych domu

• Wypust tarasowy; od 10 do 60cm długości

• Taras; od 61cm długości do - do wyboru przez klienta

 

IZOLACJA

• Zamiana na wełnę o większej grubości i lepszych parametrach.

• Zamiana na Pianę PUR.

 

OKNA

• Zamiana okien na 3 szybowe

• Okleina okienna obustronna

• Zmiana lub dodanie okien np na trójkątne na czele domu.

• Zmiana okien na system VEKA

• Rolety okienne; Moskitiery; Zasłony

 

DRZWI ZEWNĘTRZNE

• Przeszklone w pakiecie 2 lub 3 szybowym

 

ELEWACJA DOM MOBILNY

• Zamiana paneli elewacyjnych standard na materiały EXTRA PAID. Panel na rąbek; Panel Karo; Fronto MAX 3; Solvo; VinyPlus Quattro; VinyPlus Round Profil; VinyPlus Shadow; Viny Board Design; Viny Board; VinyPlus Classic; Kerrafront Classic; Kerrafront Modern Wood; Kerrafront Wood Effect; Deska, Drewno tarasowe

 

DACH I SUFIT

• Zamiana paneli dachowych standard na materiały EXTRA PAID. Zet Roof; Izi Roof; Izi Look; Panel na rąbek; Panel Karo, Panel fotowoltaiczny SunRoof lub SolRoof

• Orynnowanie kwadratowe lub system rynny ukrytej

• Zamiana paneli sufitowych standard na materiały EXTRA PAID. Vilo Motivo PVC; Strama Panel; Forestia One-Step Wall; Forestia EliteX; Forestia Walls2Paint; Huntonit; Vito; Dom mobilny

 

PODŁOGA

• Zamiana paneli ściennych standard na materiały EXTRA PAID. Vilo Motivo PVC; Strama Panel; Forestia One-Step Wall; Forestia EliteX; Forestia Walls2Paint; Huntonit; Vito

• Zamiana paneli ściennych Łazienki standard na panele FIBO.

 

ŚCIANY WEWNĘTRZNE

• Zamiana paneli podłogowych standard na materiały EXTRA PAID. Panel Rigio lub Panel Quick-Step

 

OŚWIETLENIE ZEWNĘTRZNE

• Zewnętrzne kinkiety kierunkowe LED Premium

• Zewnętrzne liniowe oświetlenie LED dookoła witryny przeszklonej

 

OŚWIETLENIE WEWNĘTRZNE

• Liniowe oświetlenie LED w suficie

 

OGRZEWANIE I KLIMATYZACJA

• Ogrzewanie podłogowe elektryczne, folia grzewcza na podczerwień o mocy 80w/m2. Sterowanie za pomocą Wi-Fi - aplikacja mobilna; w każdym pomieszczeniu termostat

• Zamiana grzejnika standardowego na model EXTRA PAID

• Zamiana grzejnika łazienkowego na model EXTRA PAID

• Zamiana klimatyzacji z funkcją grzania na mocniejszy model

 

WYPOSAŻONA ŁAZIENKA DOM MOBILNY

• Kabina prysznicowa 90 x 90cm lub większa z armaturą Premium

• WC podwieszany biały lub czarny

• Lustro LED Premium

• Umywalka nablatowa Premium

• Bojler elektryczny 80L

 

WYPOSAŻONA KUCHNIA

• Zabudowa kuchenna VIP; szafki skośne do sufitu

• Okleina meblowa w połysku

• Lodówka wysoka w zabudowie; - Whirlpool

• Zmywarka w zabudowie 45cm; - Whirlpool

• Zlewozmywak extra

 

WYPOSAŻONY SALON

• Sofa extra

• Stół z krzesłami

• Szafka pod telewizor

 

WYPOSAŻONA SYPIALNIA I

• Zamiana stolika nocnego standard na model EXTRA PAID

• Szafka wisząca nad łóżkiem

• Szafa stojąca

 

WYPOSAŻONA SYPIALNIA II

• Zamiana stolików nocnych standard na modele EXTRA PAID

• Szafa stojąca z drzwiami przesuwnymi

• Szafka wisząca nad łóżkiem

 

OCHRONA

• Dodatkowe zabezpieczenie domku folią termokurczliwą na czas Transportu

 

DODATKOWE ELEMENTY DOM MOBILNY

• Instalacja fotowoltaiczna

• Przygotowanie pod instalację fotowoltaiczną

• Magazyn energii

• Pompa ciepła

• Monitoring lub przygotowanie pod monitoring

• Projekt budowlany

• Fotorealistyczne wizualizacje domu przed produkcją (dopasowanie idealnego domu w czasie projektowania)

• Transport, ustawianie i poziomowanie domu na działce klienta

• Dokument potwierdzający Certyfikat TÜV Rheinland (norma europejska EN 1647)

Premium

Dom mobilny
Dom mobilny
Podstawa wyposażenia Standard oraz dodatkowo:
 

WYPOSAŻONA KUCHNIA

• Zabudowa kuchenna standard na osprzęcie BLUM, okleina oraz blat do wyboru, AGD w zabudowie

• Lodówka w zabudowie 122 cm/H; - Whirlpool

• Piekarnik - Whirlpool

• Płyta indukcyjna - Whirlpool

• Okap teleskopowy - Whirlpool

• Zlewozmywak Standard Granitowy lub Stalowy do wyboru, z baterią

 

WYPOSAŻONY SALON

• Sofa lub Narożnik z funkcją spania, dowolny rodzaj z katalogu

• Uchwyt ścienny na telewizor

• Stolik kawowy do wyboru z katalogu

 

WYPOSAŻONA SYPIALNIA I

• Łóżko pojedyncze z katalogu 70x200 / 2 szt

• Stolik nocny standard / 1szt

 

WYPOSAŻONA SYPIALNIA II

• Łóżko duże z katalogu 160x200 / 1szt

• Stolik nocny standard / 2szt

Standard

Dom mobilny
Dom mobilny
Podstawa wyposażenia Basic oraz dodatkowo:
 

DACH I SUFIT

• Wykończenie sufitu Panel PCV Standard o dowolnym kolorze z katalogu (szerokość panela 100 lub 165mm) lub Panel PCV Vilo biały (szerokość panela 250mm)

 

PODŁOGA

• Wykończenie podłogi Panel podłogowy winylowy VILO z katalogu

• Listwy przypodłogowe i przysufitowe w kolorze białym

 

ŚCIANY WEWNĘTRZNE

• Wykończenie ścian Panel PCV Standard o dowolnym kolorze z katalogu (szerokość panela 100 lub 165mm) lub Panel PCV Vilo biały (szerokość panela 250mm)

• Wykończenie ścian łazienki Panel VILO SPC, kolor do wyboru z katalogu

 

OŚWIETLENIE WEWNĘTRZNE

• Wewnętrzne regulowane punkty LED w każdym pomieszczeniu, w zależności od wielkości domu 12 lub 16szt

 

DRZWI WEWNĘTRZNE

• Drzwi w komplecie z ościeżnicami, dowolne z katalogu

 

OGRZEWANIE I KLIMATYZACJA

• Grzejnik elektryczny standard; 1szt / pomieszczenie (łącznie 3-5 na cały dom)

• Grzejnik drabinkowy standard do łazienki; 1szt

• Klimatyzacja z funkcją grzania 3,2kW, sterowanie pilotem i aplikacją mobilną

 

WYPOSAŻONA ŁAZIENKA

• Kabina prysznicowa 90 x 90cm z armaturą, w kolorze z katalogu

• WC kompakt stojący

• Lustro LED standard z katalogu

• Szafka pod umywalkę, fronty oraz blat do wyboru

• Umywalka nablatowa z baterią

• Wentylacja mechaniczna

• Bojler elektryczny 50L

Basic 

Dom mobilny
Dom mobilny

KONSTRUKCJA DOMU

• Szkieletowa stalowa z elementami drewnianymi zaimpregnowana antykorozyjnie, wykonana na podstawie projektu konstrukcyjnego. Wersja mobilna (z kołami, od 4 do 8 kół, opcjonalnie oś skrętna) lub Flat Floor (płaska podłoga). Spód domu zabezpieczony blachą. Standardowa wysokość pomieszczeń wewnątrz 250cm.

 

IZOLACJA całoroczna

• Wełna mineralna 15 cm λD= 0,035 W/mK w podłodze, dachu i ścianie.

• Izolacja przeciwwilgociowa; paroizolacja i wiatroizolacja.

 

OKNA

• PCV - Pakiet dwuszybowy (2), głębokość zabudowy 80mm; w okleinie na zewnątrz.

 

DRZWI ZEWNĘTRZNE

• Stalowe ciepłe z katalogu 90cm.

 

ELEWACJA

• Standard z katalogu: Fronto V-BLACK lub Fronto MONOCOLORS lub Siding Vilo.

 

DACH I SUFIT

• Pokrycie dachu standard: Panel FINN lub ALFA lub STIGMA.

• System fasadowy z orynnowaniem PCV standard lub bez.

• Oprócz elementów konstrukcji stalowej: podkonstrukcja drewniana, płyta OSB 10mm, wełna mineralna 15cm, membrana (wiatroizolacja) oraz folia paroizolacyjna.

• Sufit trójkątny w każdym pomieszczeniu, dający przestronność; sufity wykończone płytą OSB

 

PODŁOGA

• Podkonstrukcja drewniana, płyta OSB 22mm, wełna mineralna 15cm, membrana (wiatroizolacja) oraz folia paroizolacyjna.

• Wykończenie podłogi płytą OSB.

 

ŚCIANY WEWNĘTRZNE

• Podkonstrukcja drewniana, płyta OSB 10mm, ściany zewnętrzne wełna mineralna 15cm, membrana (wiatroizolacja) oraz folia paroizolacyjna.

• Wykończenie ścian wewnętrznych płytą OSB.

• Wykończenie ścian łazienki płytą OSB.

 

OŚWIETLENIE ZEWNĘTRZNE

• Zewnętrzne kinkiety kierunkowe LED. Standard po 3 szt na stronę (łącznie 6 sztuk).

 

INSTALACJA ELEKTRYCZNA

• 3F, Rozprowadzone przewody; skrzynka rozdzielnicza, bezpieczniki.

• Skrzynka elektryczna zewnętrzna do podłączenia źródła zasilania, instalacja RTV.

• Wypuszczone kable do gniazd 230V ściennych oraz włączników w każdym pomieszczeniu.

• Wyjścia do oprawy sufitowej LED (12-16 szt). Wyjścia do urządzeń.

 

INSTALACJA HYDRAULICZNA

• Kompletna instalacja WOD-KAN z gotowymi podejściami pod domem. Instalacja wodna sprawdzona ciśnieniowo.

• Gotowe do podłączenia urządzeń.

 

Wersja STANDARD
WERSJA STANDARD
Podstawa wyposażenia Basic oraz dodatkowo:
DACH I SUFIT

Wykończenie sufitu Panel PCV Standard o dowolnym kolorze z katalogu (szerokość panela 100 lub 165mm) lub Panel PCV Vilo biały (szerokość panela 250mm)

PODŁOGA

Wykończenie podłogi Panel podłogowy winylowy VILO z katalogu

Listwy przypodłogowe i przysufitowe w kolorze białym

ŚCIANY WEWNĘTRZNE

Wykończenie ścian Panel PCV Standard o dowolnym kolorze z katalogu (szerokość panela 100 lub 165mm) lub Panel PCV Vilo biały (szerokość panela 250mm)

Wykończenie ścian łazienki Panel VILO SPC, kolor do wyboru z katalogu

OŚWIETLENIE WEWNĘTRZNE

Wewnętrzne regulowane punkty LED w każdym pomieszczeniu, w zależności od wielkości domu 12 lub 16szt

DRZWI WEWNĘTRZNE

Drzwi w komplecie z ościeżnicami, dowolne z katalogu

OGRZEWANIE I KLIMATYZACJA

Grzejnik elektryczny standard; 1szt / pomieszczenie (łącznie 3-5 na cały dom)

Grzejnik drabinkowy standard do łazienki; 1szt

Klimatyzacja z funkcją grzania 3,2kW, sterowanie pilotem i aplikacją mobilną

WYPOSAŻONA ŁAZIENKA

Kabina prysznicowa 90 x 90cm z armaturą, w kolorze z katalogu

WC kompakt stojący

Lustro LED standard z katalogu

Szafka pod umywalkę, fronty oraz blat do wyboru

Umywalka nablatowa z baterią

Wentylacja mechaniczna

Bojler elektryczny 50L

Wersja PREMIUM
WERSJA PREMIUM
Podstawa wyposażenia Standard oraz dodatkowo:
WYPOSAŻONA KUCHNIA

Zabudowa kuchenna standard na osprzęcie BLUM, okleina oraz blat do wyboru, AGD w zabudowie

Lodówka w zabudowie 122 cm/H; - Whirlpool

Piekarnik - Whirlpool

Płyta indukcyjna - Whirlpool

Okap teleskopowy - Whirlpool

Zlewozmywak Standard Granitowy lub Stalowy do wyboru, z baterią

WYPOSAŻONY SALON

Sofa lub Narożnik z funkcją spania, dowolny rodzaj z katalogu

Uchwyt ścienny na telewizor

Stolik kawowy do wyboru z katalogu

WYPOSAŻONA SYPIALNIA I

Łóżko pojedyncze z katalogu 70x200 / 2 szt

Stolik nocny standard / 1szt

WYPOSAŻONA SYPIALNIA II

Łóżko duże z katalogu 160x200 / 1szt

Stolik nocny standard / 2szt

Wyposażenie dodatkowe wyceniane indywidualnie  do konkretnego wymiaru domu. Podstawa Oferta domów mobilnych + extra dodatki.

Wersja PREMIUM
WYPOSAŻENIE DODATKOWE
EXTRA PAID
WYPOSAŻENIE DODATKOWE

Cynkowanie ogniowe podwozia domu

Obrotnica domu dla wersji Mobilnej. Sterowanie domem w bardzo prosty sposób.

Zmiana kąta nachylenia dachu

Zmiana wysokości pomieszczenia wewnątrz

Zmiana wymiarów całkowitych domu

Wypust tarasowy; od 10 do 60cm długości

Taras; od 61cm długości do - do wyboru przez klienta

IZOLACJA

Zamiana na wełnę o większej grubości i lepszych parametrach.

Zamiana na Pianę PUR.

OKNA

Zamiana okien na 3 szybowe

Okleina okienna obustronna

Zmiana lub dodanie okien np na trójkątne na czele domu.

Zmiana okien na system VEKA

Rolety okienne; Moskitiery; Zasłony

DRZWI ZEWNĘTRZNE

Przeszklone w pakiecie 2 lub 3 szybowym

ELEWACJA

Zamiana paneli elewacyjnych standard na materiały EXTRA PAID. Panel na rąbek; Panel Karo; Fronto MAX 3; Solvo; VinyPlus Quattro; VinyPlus Round Profil; VinyPlus Shadow; Viny Board Design; Viny Board; VinyPlus Classic; Kerrafront Classic; Kerrafront Modern Wood; Kerrafront Wood Effect; Deska, Drewno tarasowe

DACH I SUFIT

Zamiana paneli dachowych standard na materiały EXTRA PAID. Zet Roof; Izi Roof; Izi Look; Panel na rąbek; Panel Karo, Panel fotowoltaiczny SunRoof lub SolRoof

Orynnowanie kwadratowe lub system rynny ukrytej

Zamiana paneli sufitowych standard na materiały EXTRA PAID. Vilo Motivo PVC; Strama Panel; Forestia One-Step Wall; Forestia EliteX; Forestia Walls2Paint; Huntonit; Vito

PODŁOGA

Zamiana paneli ściennych standard na materiały EXTRA PAID. Vilo Motivo PVC; Strama Panel; Forestia One-Step Wall; Forestia EliteX; Forestia Walls2Paint; Huntonit; Vito

Zamiana paneli ściennych Łazienki standard na panele FIBO.

ŚCIANY WEWNĘTRZNE

Zamiana paneli podłogowych standard na materiały EXTRA PAID. Panel Rigio lub Panel Quick-Step

OŚWIETLENIE ZEWNĘTRZNE

Zewnętrzne kinkiety kierunkowe LED Premium

Zewnętrzne liniowe oświetlenie LED dookoła witryny przeszklonej

OŚWIETLENIE WEWNĘTRZNE

Liniowe oświetlenie LED w suficie

OGRZEWANIE I KLIMATYZACJA

Ogrzewanie podłogowe elektryczne, folia grzewcza na podczerwień o mocy 80w/m2. Sterowanie za pomocą Wi-Fi - aplikacja mobilna; w każdym pomieszczeniu termostat

Zamiana grzejnika standardowego na model EXTRA PAID

Zamiana grzejnika łazienkowego na model EXTRA PAID

Zamiana klimatyzacji z funkcją grzania na mocniejszy model

WYPOSAŻONA ŁAZIENKA

Kabina prysznicowa 90 x 90cm lub większa z armaturą Premium

WC podwieszany biały lub czarny

Lustro LED Premium

Umywalka nablatowa Premium

Bojler elektryczny 80L

WYPOSAŻONA KUCHNIA

Zabudowa kuchenna VIP; szafki skośne do sufitu

Okleina meblowa w połysku

Lodówka wysoka w zabudowie; - Whirlpool

Zmywarka w zabudowie 45cm; - Whirlpool

Zlewozmywak extra

WYPOSAŻONY SALON

Sofa extra

Stół z krzesłami

Szafka pod telewizor

WYPOSAŻONA SYPIALNIA I

Zamiana stolika nocnego standard na model EXTRA PAID

Szafka wisząca nad łóżkiem

Szafa stojąca

WYPOSAŻONA SYPIALNIA II

Zamiana stolików nocnych standard na modele EXTRA PAID

Szafa stojąca z drzwiami przesuwnymi

Szafka wisząca nad łóżkiem

OCHRONA

Dodatkowe zabezpieczenie domku folią termokurczliwą na czas Transportu

DODATKOWE ELEMENTY

Instalacja fotowoltaiczna

Przygotowanie pod instalację fotowoltaiczną

Magazyn energii

Pompa ciepła

Monitoring lub przygotowanie pod monitoring

Projekt budowlany

Fotorealistyczne wizualizacje domu przed produkcją (dopasowanie idealnego domu w czasie projektowania)

Transport, ustawianie i poziomowanie domu na działce klienta

Dokument potwierdzający Certyfikat TÜV Rheinland (norma europejska EN 1647)

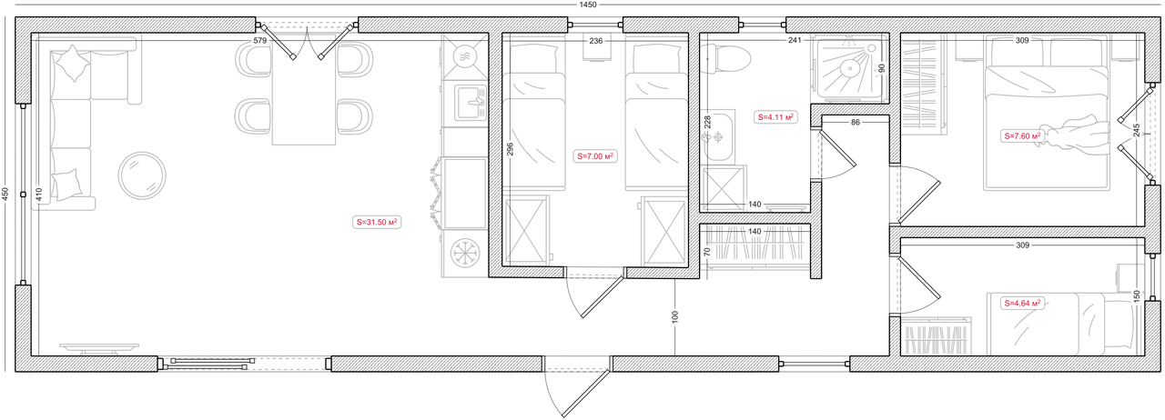
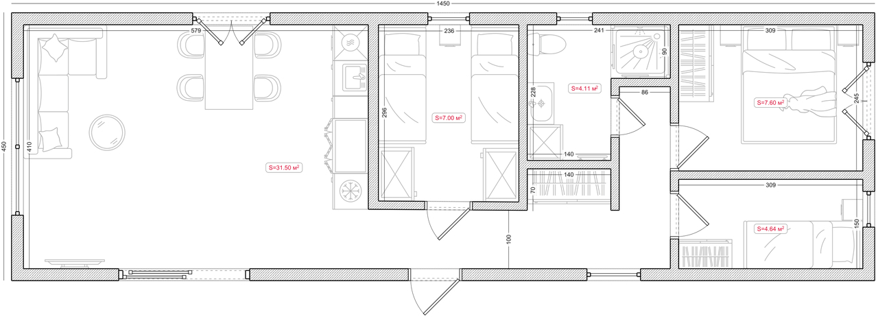
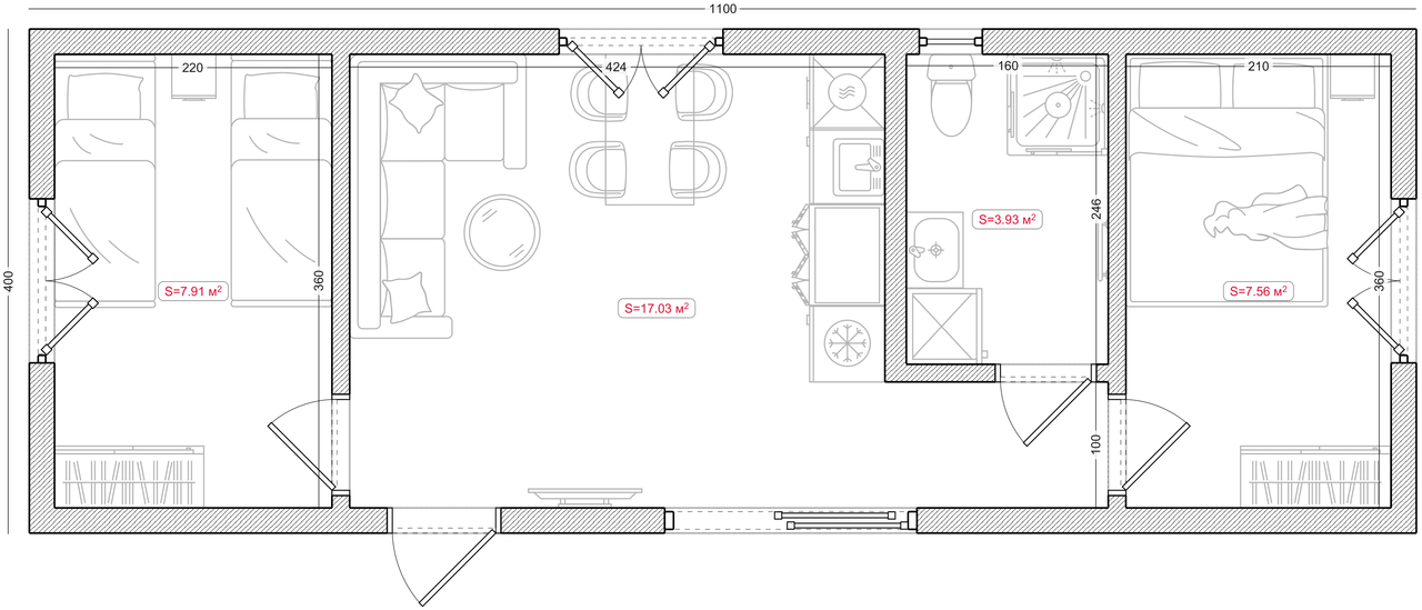
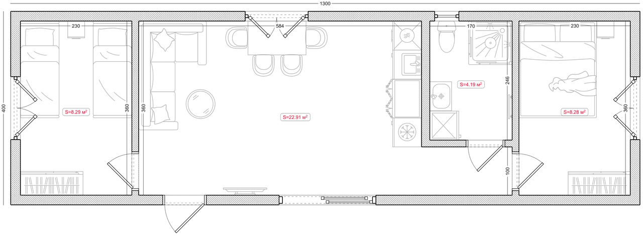
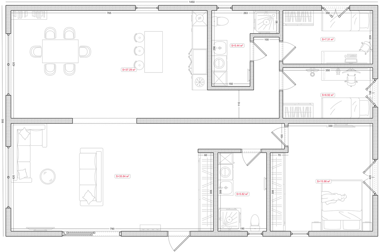
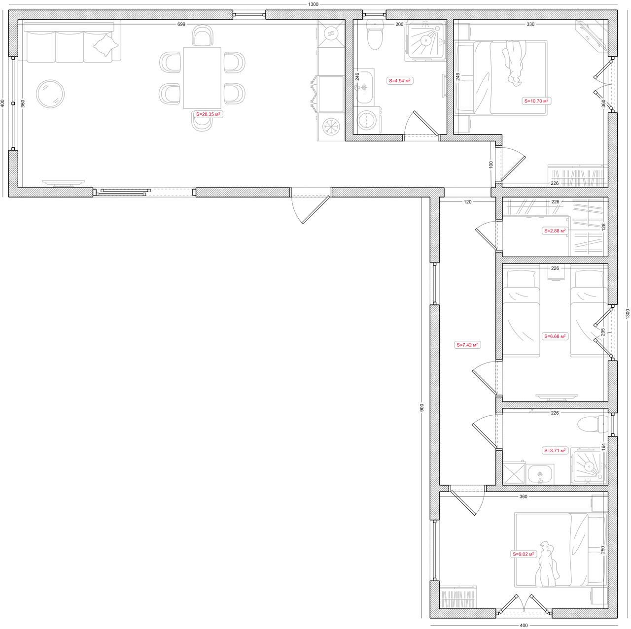
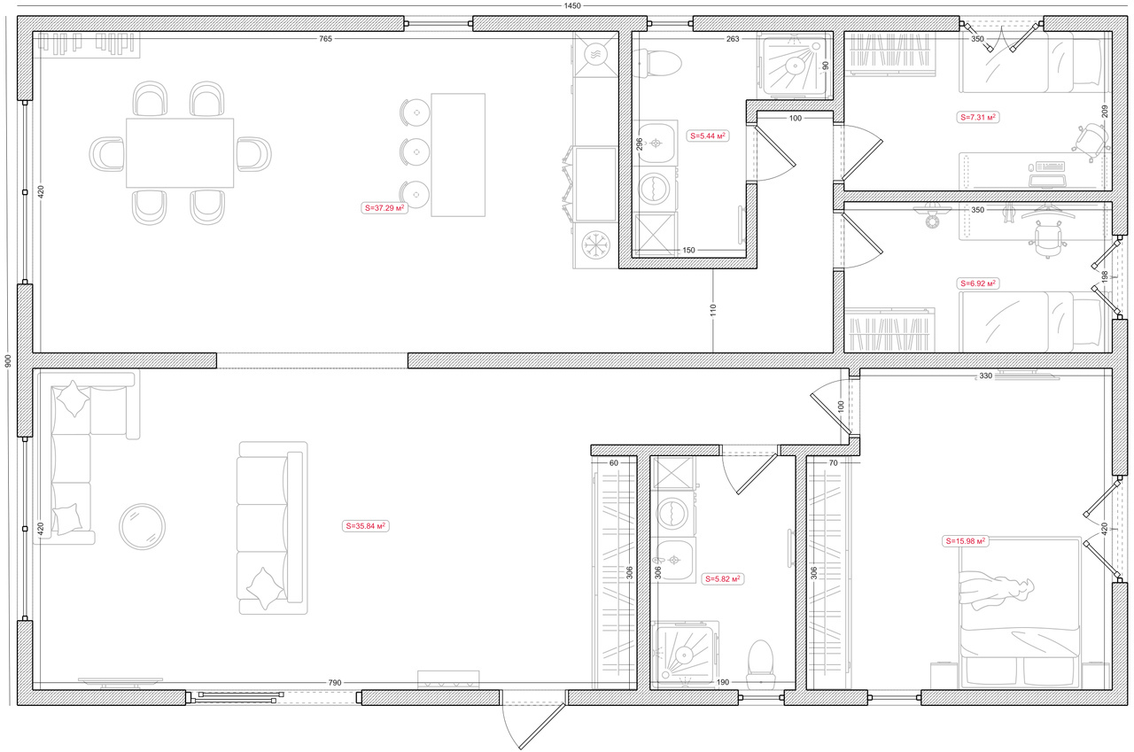
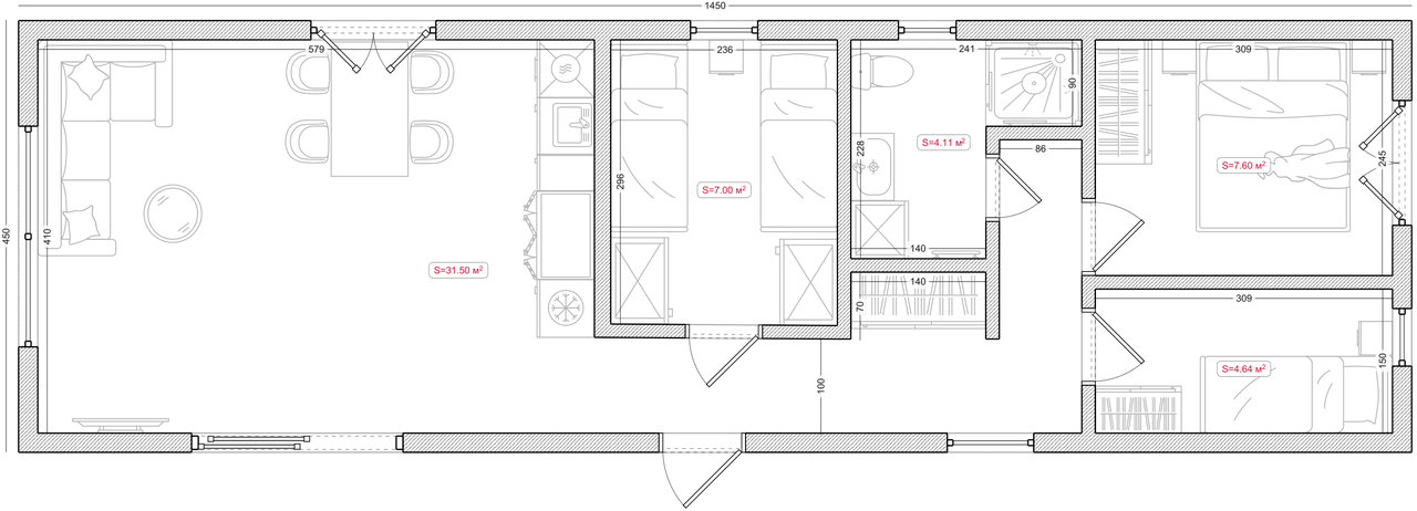
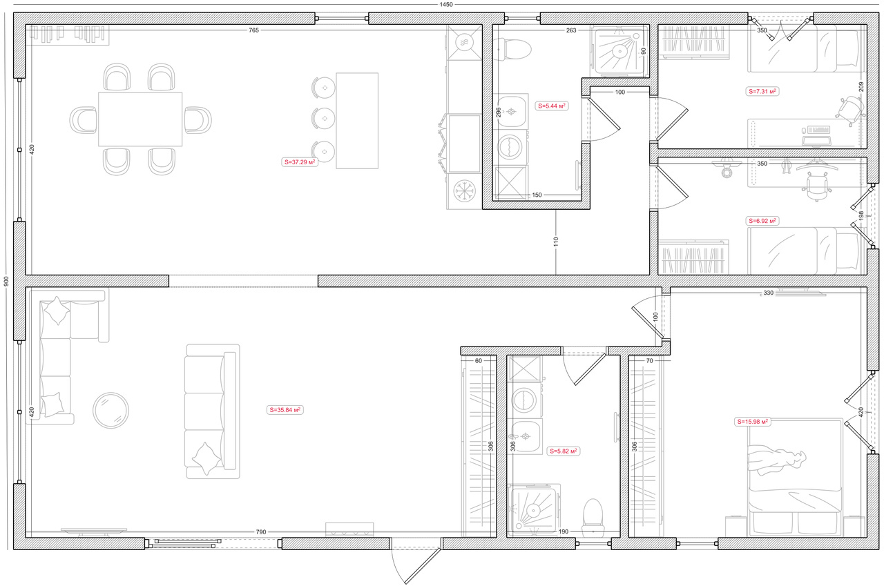
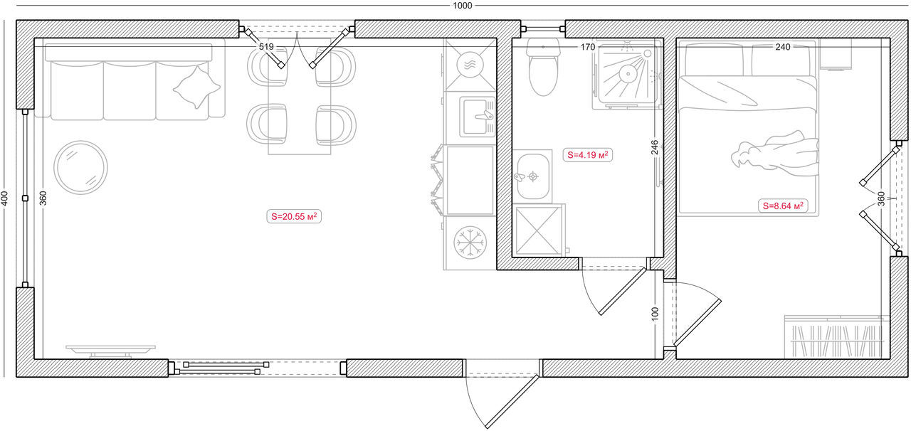
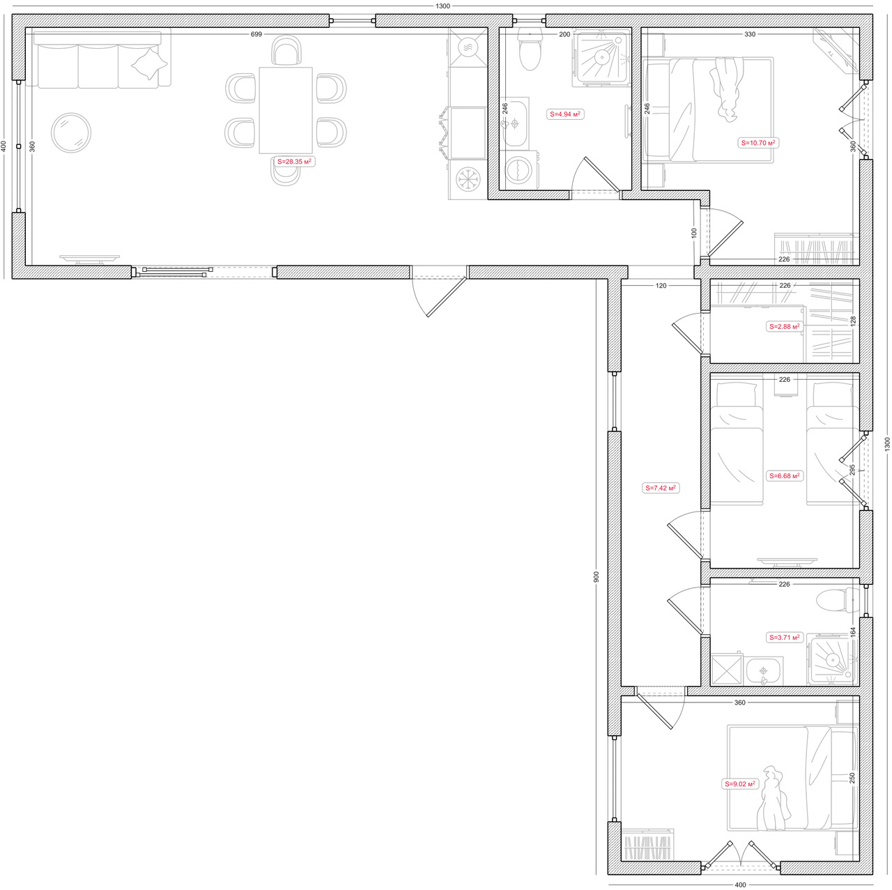
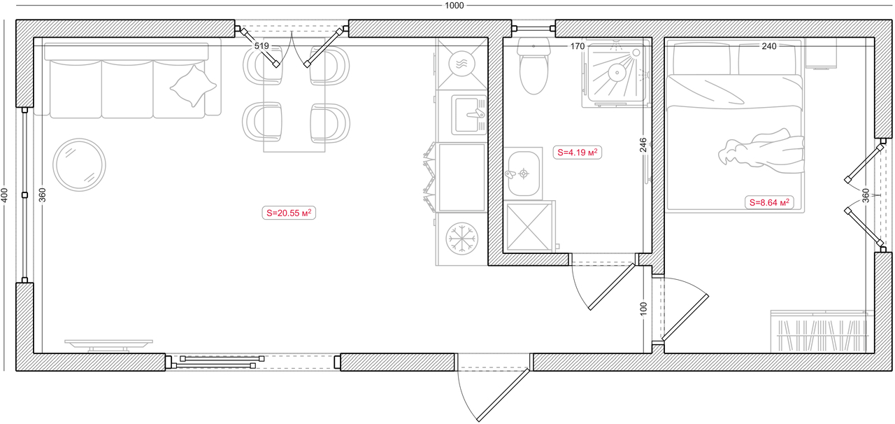
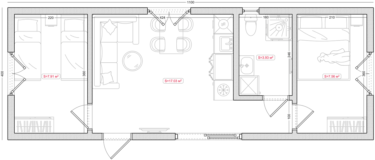
DOMY

Przykładowe domy:

Cena domu letniskowego 2k25

Nasze domy:

MODELE DOMÓW

Letniskowy domek
  • Transport domu – bezpieczne przewiezienie budynku na miejsce docelowe z użyciem nowoczesnego sprzętu.

  • Rozładunek – profesjonalne rozładowanie domu przez nasz doświadczony zespół, zapewniające bezpieczeństwo i efektywność.

  • Wciągnięcie na działkę – precyzyjne umiejscowienie budynku z wykorzystaniem ciągników, koparek lub dźwigów.

  • Ustawienie i poziomowanie – dokładne wyregulowanie budynku przy użyciu zaawansowanych narzędzi pomiarowych dla zapewnienia stabilności i komfortu mieszkańców.

 

Nasza ekipa specjalistów gwarantuje fachowe podejście i pełne wsparcie na każdym etapie, co sprawia, że proces jest bezstresowy i efektywny.

Chętnie wykonamy cały proces od początku do końca - kompleksowo

Kompleksowa obsługa

MOBIL HUIJS
Oferta domów mobilnych VIP Mobil House dostosowana do Państwa potrzeb.

CENNIK DOMÓW

Przykładowe projekty domów:

Chętnie doradzimy i pomożemy w wyborze.

Imię

Telefon

Email

Oferta

Wiadomość

Wyślij
Wyślij
Form sent successfully. Thank you.
Please fill all required fields!

KONTAKT

Letniskowy domek

Kontakt VIP MH

office@vipmobilhouse.com

Typy domów

INSTAGRAM VIP MOBIL HOUSE
Youtube VIP MOBIL HOUSE
Pinterest VIP MOBIL HOUSE
Linkedin VIP MOBIL HOUSE
FACEBOOK VIP MOBIL HOUSE

Obserwuj Nas

TikTok
Kontakt

15-099 Białystok

Legionowa 10/208

EMAIL VIP MOBIL HOUSE PL

Copyright © 2025 | VIP Mobil House